Ocampo 400 | GLR0240

FICHA

  • Producto Casa
  • Operación Venta
  • Barrio Villa Luzuriaga
  • Ambientes 3
  • Dormitorios 2
  • Baños 1
  • Estado Bueno
  • Orientación Suroeste
  • Sup. Cubierta 99,00 m2
  • Sup. Propia 185,00 m2
  • Sup. Lote 185,00 m2
  • Frente Lote 10,00 mts
  • Fondo Lote 18,50 mts
  • Expensas 0

U$S 120.000

VENTA

Ocampo 400

Villa Luzuriaga

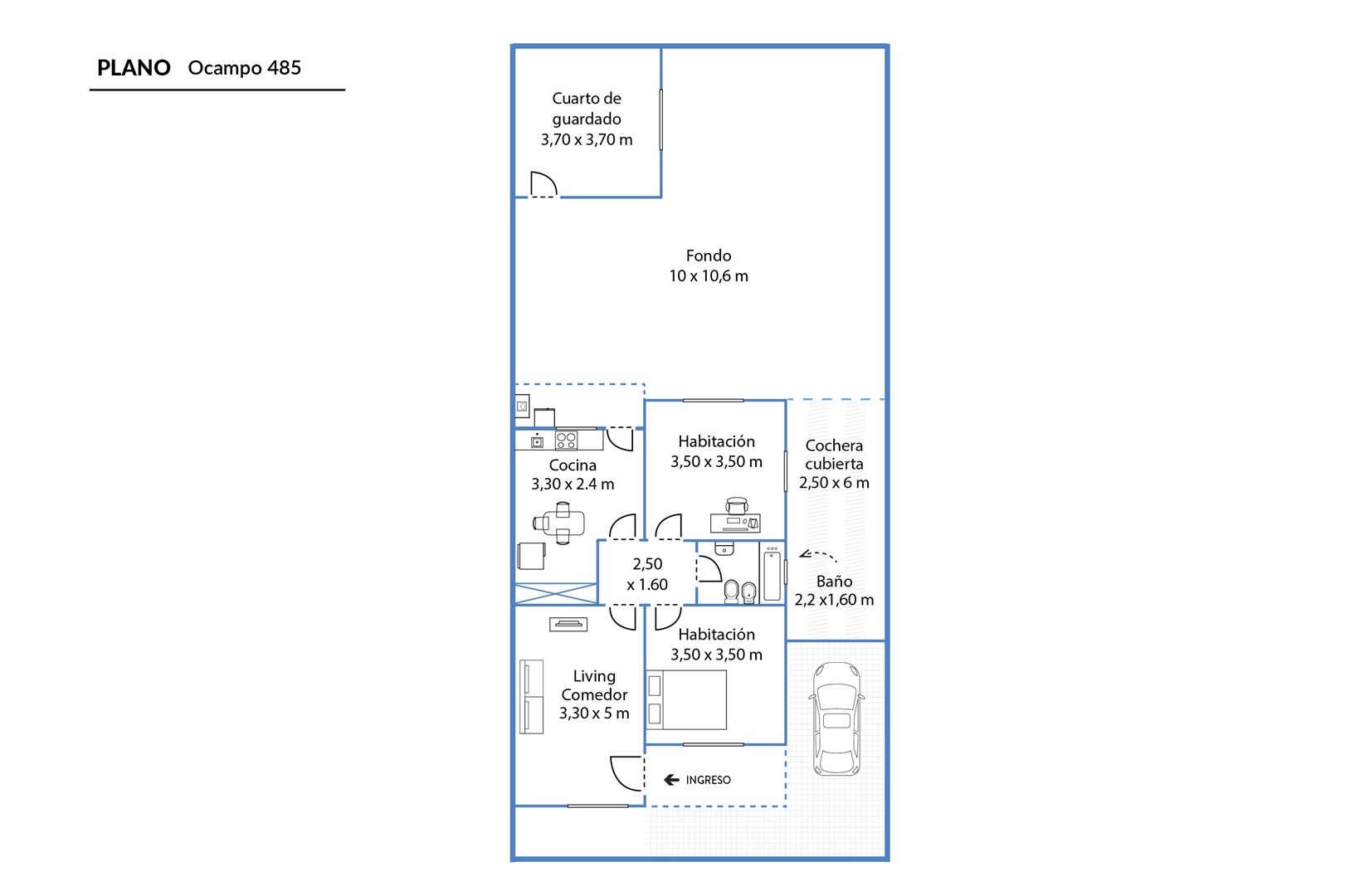
VENTA - CASA 3 AMB todo planta baja, cochera y fondo/patio LOTE PROPIO Desarrollada sobre un lote de 185 m², esta propiedad de una sola planta ofrece una cómoda distribución con ambientes bien definidos y funcionales. Al ingresar, nos recibe un living comedor con vista al frente, que aporta buena iluminación natural. Un espacio distribuidor conduce a los dos dormitorios, ambos amplios y confortables, y a un baño completo. La cocina se encuentra separada, brindando practicidad y comodidad para quienes disfrutan cocinar sin invadir los demás ambientes. Desde allí se accede al fondo/patio, que ofrece más de 65 m² descubiertos, ideales para disfrutar del aire libre. En el exterior cuenta con lavadero semicubierto, guardaútiles, cochera cubierta para un auto y la posibilidad de estacionar un segundo vehículo descubierto al frente. La propiedad presenta gran potencial de refacción, ideal para transformar cada metro en un hogar cálido y funcional. Una excelente oportunidad por metros, funcionalidad y posibilidades de mejora. Además, contamos con profesionales que pueden diseñar el proyecto junto a vos, acompañándote en cada etapa. Contactanos para organizar una visita. Nota:Las medidas, superficies, metros cuadrados y proporciones consignadas son aproximadas y podrán variar respecto del título de propiedad. Las medidas parciales y/o de los ambientes se encuentran sujetas a verificación y/o ajuste. El valor de las expensas, si las hubiere, está sujeto a variación. Corredor responsable: Juan Gallardo – CUCICBA N.° 9624 – CMCPM N.° 2968


DETALLE DE LA PROPIEDAD

Cant. Pax: 4
Expensas: 0

*Las descripciones arquitectónicas, valores de expensas, impuestos o servicios, fotos y medidas de las propiedades son aproximados. Los datos fueron proporcionados por el propietario y pueden no estar actualizados a la hora de la visualización de este aviso por lo cual pueden arrojar inexactitudes o discordancias con las que surjan de los las facturas, títulos o planos legales del inmueble. Se pondrá a disposición del interesado la documentación necesaria a fin de realizar las verificaciones respectivas previamente a la realización de cualquier operación, requiriendo por sí o sus profesionales la documentación que corresponda.

PROPIEDADES SIMILARES

CASA DÚPLEX

Cervantes 2000

Villa Luzuriaga, La Matanza, G.B.A. Zona Oeste

VENTA

U$S 107.000

73,00 m2 3 Dorm 2 Baños
CASA CHALET

JUJUY 800

Villa Luzuriaga, La Matanza, G.B.A. Zona Oeste

VENTA

U$S 119.000

86,00 m2 3 Dorm 1 Baños

CONTACTO





Solicitá tu tasación !

Nuestro compromiso es acompañarte y brindarte todo lo necesario para lograr tu objetivo.

Gallardo Propiedades. COPYRIGHT 2026 juan C. Gallardo, Matricula 2968 Morón - CUCICBA 9624

Desarrollado por TecnoGestión Sistemas